Negozio in vendita

Pavia, Via Giacomo Parodi
€ 415.000
2 locali 2 locali
240 Mq 240 Mq
4 bagni 4 bagni

Negozio in vendita

Pavia, Via Giacomo Parodi

Descrizione annuncio

INVESTIMENTO A REDDITO - NEGOZIO LOCATO A RISTORANTE IN CENTRO STORICO, PAVIA
Zona: Piazza Della Vittoria, Pavia

In una traversa di Corso Cavour immobile ad uso negozio di 240 mq a reddito in una delle zone più rinomate di Pavia, locato a una pizzeria/ristorante ben avviata e presente da anni. Ottima occasione di investimento, con rendita garantita in una posizione strategica nel centro storico.

Caratteristiche dell’immobile

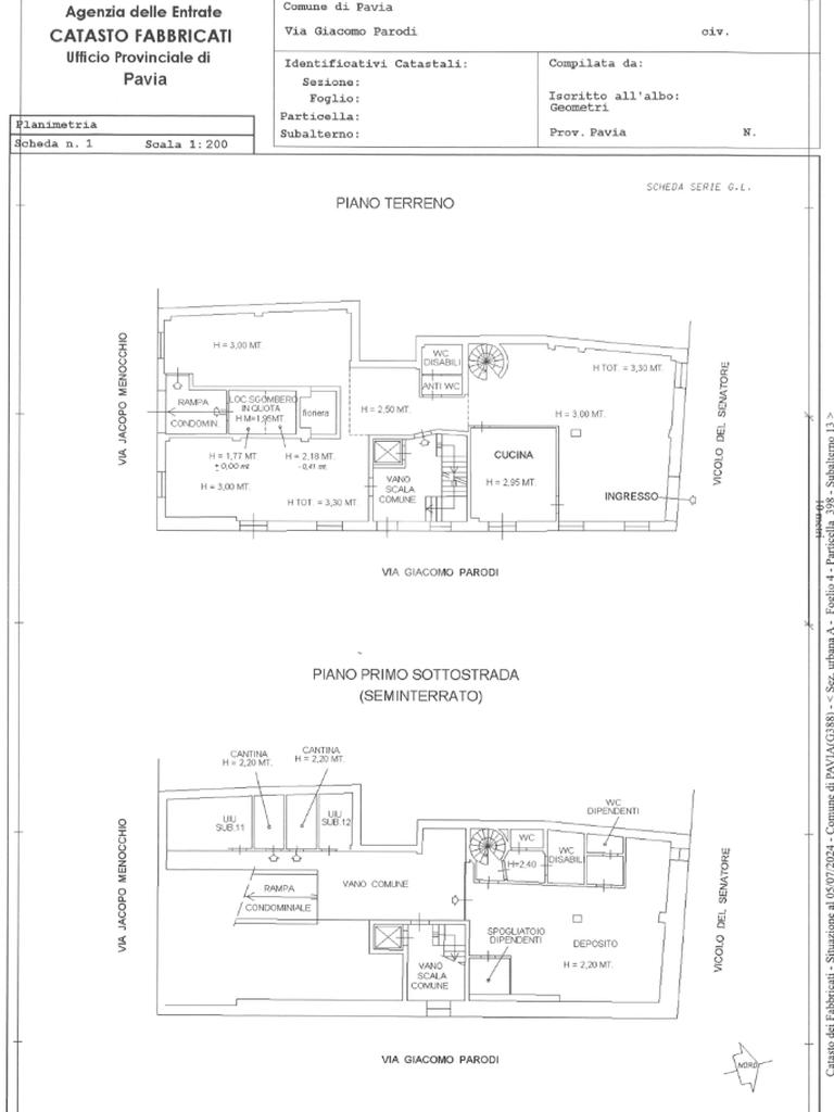
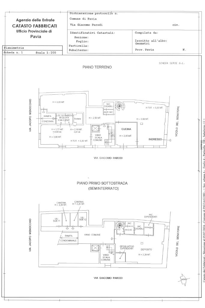
240 mq su due livelli: distribuito tra piano terra e piano seminterrato.

Nove luci: grande visibilità grazie alla presenza di vetrine su tre vie.Canna fumaria indipendente: ideale per attività di ristorazione.Piano terra: ampio ingresso con zona bar, cucina, due sale per somministrazione e servizio a norma disabili.Piano seminterrato: servizi aggiuntivi per il pubblico, magazzino/deposito e spogliatoi con servizio per i dipendenti.Carico/scarico: accesso diretto al seminterrato tramite una rampa condominiale.

Posizione e contesto

Situato nel cuore di Pavia, a due passi da Piazza Della Vittoria e vicino alla Università, l’immobile è circondato da uffici pubblici e privati e beneficia di un flusso costante di residenti, studenti e lavoratori.

Mostra tutto

Nelle vicinanze

Trasporto pubblico Trasporto pubblico
stazione di Pavia
stazione di Pavia
680 m
CAVOUR Tribunale
CAVOUR Tribunale
110 m
Roma/XX Settembre
Roma/XX Settembre
180 m
stazione di Pavia Porta Garibaldi
stazione di Pavia Porta Garibaldi
1,2 Km
Ricariche auto elettriche Ricariche auto elettriche
Eneldrive Punto Enel di Pavia
480 m
Scuole Scuole
Liceo Scientifico Statale Torquato Taramelli
100 m
Istituto D'Arte Michelangelo
160 m
Facoltà di Economia
220 m
Dipartimento di Scienze Fisiologiche e Farmacologiche
250 m
Polo San Felice
250 m
Farmacia Farmacia
Farmacia Beltramelli
10 m
Farmacia Villani
100 m
Farma Wise
200 m
FA-PA
250 m
Farmacia Rovello
250 m
Ospedali Ospedali
Istituto Clinico Scientifico "Salvatore Maugeri" di via Boezio
370 m
Laboratorio Analisi Mediche San Giorgio
580 m
Poliambulatori Policlinico San Matteo
1,1 Km
Fondazione I.R.C.C.S. Policlinico San Matteo
1,3 Km
Guardia Medica
1,4 Km
Supermercati Supermercati
Esselunga di Pavia - alla Minerva
510 m
Carrefour
940 m
MD
1,2 Km
Supermercato Torretta
1,6 Km
COOP
1,9 Km
Negozi Negozi
Libero
0 m
mk
10 m
Monsoon Children
10 m
Zara
40 m
Subdued
50 m
Bar Bar
Caffè Delizia
10 m
Haiti
40 m
Caffe:x
140 m
Ritual Cafè
150 m
Milani Caffè & Caffè
170 m
Ristoranti Ristoranti
Alvolo Cibi da Strada
30 m
Pizzeria la Nuova Mergellina
60 m
Osteria alle Carceri
80 m
100 Montaditos
90 m
Ristorante del Carmine
120 m
Mostra tutto

Caratteristiche

Rif.:
61140329
Piano:
1 di 1 (Piano terra)
Condizionamento:
Autonomo
Ascensore:
No
Riscaldamento:
Centralizzato
Libero:
No
Mostra tutto
Prezzo Prezzo
€ 415.000
Rata mutuo Rata mutuo
€ 1.955 / mese
Spese annue Spese annue
€ 4.500
Proponi il tuo prezzoProponi il tuo prezzo

Classe Energetica

E
E
E
E
E
E
E
E
E
EP globale non rinnovabile:
486.72 kW h/m² anno
EP globale rinnovabile:
486.72 kW h/m² anno
EP invernale del fabbricato:
EP estiva del fabbricato:
Anno di costruzione:
1960
Riscaldamento:
Centralizzato
Tipo impianto:
A radiatori
Tipo alimentazione:
Metano

Ti interessa visionare l'immobile?

Fissa un appuntamento  Fissa un appuntamento

Richiedi informazioni

Clicca su Leggi per aprire l'informativa
* Questi campi sono obbligatori

Calcola il tuo mutuo

Semplice e senza impegno
Anticipo

( % )
Mutuo

( % )

pochi semplici passi

inserisci i tuoi dati
Questionario completato
Grazie per aver richiesto un appuntamento senza impegno con un nostro Consulente del Credito e Assicurativo.

Hai inserito correttamente tutti i dati necessari e a breve riceverai una e-mail con un link da convalidare per inviare i tuoi dati.
Affiliato
Tecnoindustria Sas
Viale Cassala, 23 20143 Milano (MI)

Il nostro staff


  • Domenico Cito
    Affiliato

  • Patrizia Leanza
    Coordinatrice

  • Davide Banfi
    Collaboratore

  • Fabrizio Siciliano
    Collaboratore
Viale Cassala, 23 20143 Milano (MI)
Zona: Milano Centro-Sud
Mostra su mappa
Orari: dal lunedì al venerdì 9.00-12.30 e 14.30-19.30 sabato 9.30-12.30
Affiliato
Tecnoindustria Sas
Viale Cassala, 23 20143 Milano (MI)

2026 Tecnocasa Franchising S.p.A. - P. IVA 08365160152 - Via Monte Bianco 60/A 20089 Rozzano (MI). Ogni agenzia ha un proprio titolare ed è autonoma. Privacy policy | Policy utilizzo | Cookie policy