Laboratorio in affitto

Milano, Alzaia Naviglio Pavese - Conca Fallata
3 locali 3 locali
230 Mq 230 Mq
3 bagni 3 bagni

Laboratorio in affitto

Milano, Alzaia Naviglio Pavese - Conca Fallata

Descrizione annuncio

ALZAIA NAVIGLIO PAVESE Laboratorio/Loft su due livelli

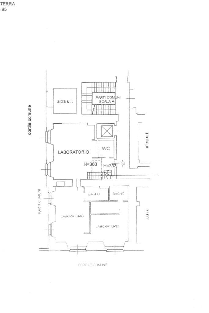
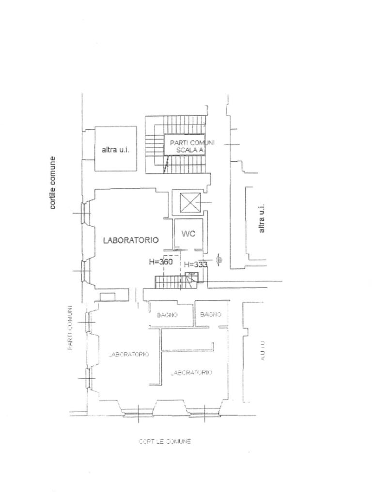
L'IMMOBILE ad uso laboratorio disposto su due livelli, il piano rialzato di diviso in tre ampi locali oltre a tre servizi, l’altezza interna è di 3,95mt, collegato internamente al piano sottostante di mq. 90 ca. ad uso archivio. Il riscaldamento e il condizionamento sono centralizzati. E’ ubicato all’interno della ex Cartiera Binda, oggi completamente riqualificata e trasformata in un complesso prevalentemente residenziale. Il complesso è servito da portineria.

LA ZONA. L'immobile è ubicato all’interno del complesso “Le Corti Dell’Alzaia”

Mostra tutto

Nelle vicinanze

Trasporto pubblico Trasporto pubblico
Abbiategrasso
Abbiategrasso
960 m
Famagosta
Famagosta
1,5 Km
Via dei Missaglia (Isola Anita)
Via dei Missaglia (Isola Anita)
610 m
Via dei Missaglia - Sant'Abbondio
Via dei Missaglia - Sant'Abbondio
640 m
Via Chiesa Rossa - Via Boifava
Via Chiesa Rossa - Via Boifava
250 m
Ricariche auto elettriche Ricariche auto elettriche
Esselunga Famagosta
1,5 Km
EnelX EVA+ IP Via La Spezia
1,9 Km
EnelX EVA+ Assago Nord Stazione MM1
2,2 Km
Enel Drive - Milanofiori Nord MM
2,2 Km
Assago Cascina Bazzana
2,3 Km
Scuole Scuole
Scuole
410 m
Istituto Comprensivo Sant'Ambrogio
1,0 Km
Istituto di istruzione superiore Salvador Allende - Pietro Custodi
1,1 Km
Istituto di istruzione superiore Claudio Varalli
1,2 Km
Istituto di istruzione superiore Evangelista Torricelli
1,2 Km
Farmacia Farmacia
Farmacia comunale
690 m
Farmacia
700 m
Farmacia Montegani Snc
1,3 Km
A.F.M. COMUNALE N.70
1,6 Km
Farmacia Barona
1,9 Km
Ospedali Ospedali
ospedale San Paolo
1,4 Km
Supermercati Supermercati
Carrefour Market
710 m
Esselunga
740 m
Mercato Comunale
970 m
U! Unes
1,0 Km
Mercato comunale
1,3 Km
Negozi Negozi
Il Pane
1,1 Km
Negozi
1,2 Km
Il Fornaio
1,4 Km
Kamal
1,7 Km
Carrefour Express
1,8 Km
Bar Bar
Micrò
870 m
Bar
900 m
Barrio's Cafe
1,8 Km
Barona
1,9 Km
Rocket
2,0 Km
Ristoranti Ristoranti
Erba Brusca
90 m
Ristoranti
160 m
Mangia & Bevi
650 m
La pizza di Pulcinella
1,3 Km
Kitchen
1,4 Km
Mostra tutto

Caratteristiche

Rif.:
61200699
Piano:
Basso di 3
Totale piani:
3
Condizionamento:
Centralizzato
Ascensore:
No
Riscaldamento:
Centralizzato
Mostra tutto
Prezzo Prezzo
€ 2.000 / mese
Spese annue Spese annue
€ 9.200
Anche in vendita a

Classe Energetica

E
E
E
E
E
E
E
E
E
EP globale non rinnovabile:
412.26 kW h/m² anno
EP globale rinnovabile:
412.26 kW h/m² anno
EP invernale del fabbricato:
EP estiva del fabbricato:
Anno di costruzione:
2000
Riscaldamento:
Centralizzato
Tipo impianto:
A radiatori
Tipo alimentazione:
Metano

Ti interessa visionare l'immobile?

Fissa un appuntamento  Fissa un appuntamento

Richiedi informazioni

Clicca su Leggi per aprire l'informativa
* Questi campi sono obbligatori
Affiliato
Tecnoindustria Sas
Viale Cassala, 23 20143 Milano (MI)

Il nostro staff


  • Domenico Cito
    Affiliato

  • Patrizia Leanza
    Coordinatrice

  • Davide Banfi
    Collaboratore

  • Fabrizio Siciliano
    Collaboratore
Viale Cassala, 23 20143 Milano (MI)
Zona: Milano Centro-Sud
Mostra su mappa
Orari: dal lunedì al venerdì 9.00-12.30 e 14.30-19.30 sabato 9.30-12.30
Affiliato
Tecnoindustria Sas
Viale Cassala, 23 20143 Milano (MI)

2026 Tecnocasa Franchising S.p.A. - P. IVA 08365160152 - Via Monte Bianco 60/A 20089 Rozzano (MI). Ogni agenzia ha un proprio titolare ed è autonoma. Privacy policy | Policy utilizzo | Cookie policy